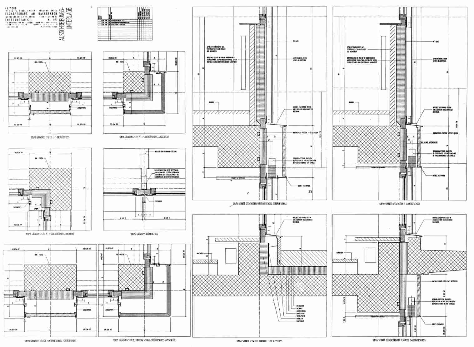
Die Pläne beschreiben die Geometrie, die Materialien und das Aussehen der Fassade. Die konkrete Ausführung definierten die Unternehmer in ihren Offerten. Das Geschäftshaus war das erste Projekt, das vollständig im neu angeschafften CAD-System bearbeitet wurde.
Nutzungsgruppierung und Tragstruktur bilden sich nach aussen ab. Am unmittelbarsten geschieht dies bei den Stützen. Die Fassadenverkleidung ergänzt die Viertel-, Halb- oder Dreiviertel-Fassadenstützen zum vollen quadratischen Querschnitt der Innenstützen. Innen- und Aussenecken bewirken damit keinen Bruch in der Grundriss-Geometrie. Der innere Teil der Stütze entspricht in seinen Abmessung dem des Deckfelds, das er trägt. Der äussere Teil ermöglicht die Unterbringung der technischen Einrichtungen der Fassade im vergrösserten Hinterlüftungsraum.
➝ Konzept, Umsetzung
➝ Fassadenentwurf
➝ Bild zur Strasse
➝ Bild der Geschosse
➝ Standort
← Innovation Park Basel Area
← Department of Biomedical Engineering, University of Basel
← Idorsia (hervorgegangen aus Actelion, übernommen von Johnson&Johnson)